Plany budynków są kluczowym elementem w procesie budowlanym oraz przy wszelkich remontach czy adaptacjach. Aby je znaleźć, warto wiedzieć, gdzie szukać i jakie źródła mogą okazać się pomocne. W Polsce, pierwszym krokiem powinno być skontaktowanie się z lokalnym urzędem gminy lub powiatu, gdzie można uzyskać dostęp do dokumentacji budowlanej. Wiele informacji można również znaleźć w archiwach państwowych, szczególnie w przypadku starszych budynków, które mogą mieć swoje plany przechowywane w archiwum konserwatora zabytków.
W artykule przedstawimy najważniejsze miejsca, w których można szukać planów budynków, a także omówimy, jakie informacje można w nich znaleźć. Poruszymy również problemy związane z dostępnością dokumentacji oraz zaproponujemy rozwiązania, które mogą być pomocne w sytuacjach, gdy dokumentacja jest niedostępna.
Najważniejsze informacje:
- Dokumentację budowlaną można znaleźć w urzędach gminnych i powiatowych.
- Archiwa państwowe są kluczowym źródłem dla starych projektów budynków.
- Typy dokumentów obejmują plany, rzuty oraz szczegóły techniczne budynków.
- Problemy z dostępnością mogą dotyczyć budynków zabytkowych, które mają różne regulacje prawne.
- W przypadku braku dokumentacji, warto skorzystać z ekspertyz technicznych lub współpracy z architektami.
Gdzie szukać planów budynków i jak to zrobić efektywnie
Aby znaleźć plany budynków, warto zacząć od kilku kluczowych miejsc. Najważniejszym z nich są urzędy gminne i powiatowe, które odpowiedzialne są za przechowywanie dokumentacji budowlanej. Wiele osób nie zdaje sobie sprawy, że w tych instytucjach można uzyskać dostęp do projektów budowlanych, zwłaszcza dla domów jednorodzinnych, które są przechowywane przez określony czas. Choć obowiązek ich archiwizacji trwa tylko pięć lat, istnieje możliwość, że lokalne archiwa przechowują kopie dokumentów, szczególnie jeśli budynek jest wpisany do rejestru zabytków.
Drugim ważnym źródłem są archiwa państwowe, które przechowują plany starych budynków, zwłaszcza tych z lat przed I wojną światową. Warto również pamiętać, że plany budynków z okresu zaborów mogą być dostępne w archiwach państwowych innych krajów. Znalezienie odpowiednich dokumentów wymaga jednak czasu i cierpliwości, dlatego warto zacząć poszukiwania od urzędów, a następnie przejść do archiwów, aby maksymalnie zwiększyć szanse na sukces.
Urzędy gminne jako pierwsze źródło dokumentacji budowlanej
Uzyskanie planów budynków z urzędów gminnych jest stosunkowo proste, ale wymaga spełnienia kilku kroków. Po pierwsze, należy udać się do lokalnego urzędu gminy lub powiatowego i złożyć wniosek o dostęp do dokumentacji budowlanej. Warto przygotować wszystkie niezbędne informacje, takie jak adres budynku, jego numer działki oraz inne szczegóły, które mogą ułatwić pracownikom urzędów odnalezienie potrzebnych dokumentów. Ważne jest również, aby zapoznać się z procedurami obowiązującymi w danym urzędzie, ponieważ mogą się one różnić w zależności od lokalizacji.
Archiwa państwowe: kluczowe miejsce dla starych projektów
Archiwa państwowe odgrywają kluczową rolę w poszukiwaniach historycznych planów budynków. W tych instytucjach można znaleźć różnorodne dokumenty, takie jak plany architektoniczne, rzuty budynków oraz różne akty prawne związane z budową. Aby skutecznie nawigować po archiwach, warto znać odpowiednie procedury oraz mieć świadomość, jakie dokumenty mogą być dostępne. Wiele archiwów wymaga wcześniejszego umówienia wizyty lub złożenia wniosku o dostęp do konkretnych materiałów.
Podczas wizyty w archiwum, warto zabrać ze sobą wszystkie istotne informacje, takie jak adres budynku, daty budowy czy nazwiska architektów. Dzięki temu można znacznie ułatwić pracownikom archiwum odnalezienie potrzebnych dokumentów. Należy również pamiętać, że nie wszystkie plany są dostępne do wglądu, a niektóre z nich mogą być objęte ograniczeniami dostępu ze względu na ich wiek lub stan zachowania.
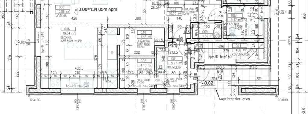
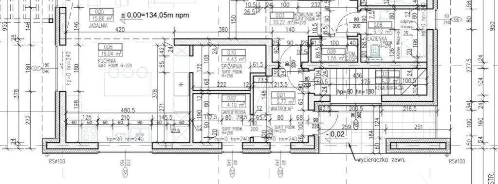
Jakie informacje można znaleźć w planach budynków
W planach budynków można znaleźć wiele ważnych informacji, które są niezbędne dla różnych użytkowników. Typowe dokumenty, które można znaleźć, obejmują plany zagospodarowania terenu, rzuty pięter oraz szczegółowe opisy techniczne. Te informacje są kluczowe dla osób planujących remonty, adaptacje lub budowy nowych obiektów. Znajomość tych danych pozwala na lepsze zrozumienie struktury budynku oraz jego funkcji.Warto zaznaczyć, że różne typy dokumentów mają różne znaczenie dla użytkowników. Na przykład, architekci potrzebują szczegółowych rysunków technicznych, podczas gdy inwestorzy mogą być bardziej zainteresowani ogólnymi planami zagospodarowania. Właściwe zrozumienie tych różnic może znacznie ułatwić proces planowania oraz podejmowania decyzji związanych z budową czy remontem.
| Typ dokumentu | Znaczenie |
| Plany zagospodarowania terenu | Określają, jak dany teren może być wykorzystany, co jest kluczowe dla inwestycji. |
| Rzuty pięter | Pokazują układ pomieszczeń i ich przeznaczenie, co jest istotne dla architektów i budowniczych. |
| Szczegóły techniczne | Zawierają informacje o materiałach budowlanych i konstrukcji, co jest ważne dla oceny stanu technicznego budynku. |
Typy dokumentów i ich znaczenie dla użytkownika
W planach budynków można znaleźć różne typy dokumentów, które mają kluczowe znaczenie dla użytkowników. Do najczęściej spotykanych należą plany zagospodarowania terenu, które określają, jak dany obszar może być wykorzystywany. Rzuty pięter to kolejne istotne dokumenty, które przedstawiają układ pomieszczeń i ich przeznaczenie. Warto również zwrócić uwagę na szczegółowe opisy techniczne, które zawierają informacje o materiałach budowlanych oraz metodach konstrukcji. Te dokumenty są niezbędne dla architektów, inżynierów oraz inwestorów planujących budowy lub remonty.
Jakie szczegóły techniczne zawierają plany budynków
Plany budynków zazwyczaj zawierają szczegóły techniczne, które są kluczowe dla oceny stanu technicznego obiektu. Do najważniejszych informacji należą wymiary budynku, które określają jego wysokość, długość oraz szerokość. Dodatkowo, plany mogą zawierać informacje o materiałach budowlanych, które zostały użyte do konstrukcji, co pozwala na ocenę ich trwałości i bezpieczeństwa. Ważne są również detale dotyczące instalacji, takie jak systemy grzewcze, elektryczne oraz wodno-kanalizacyjne, które mają wpływ na funkcjonalność budynku.
Problemy z dostępnością dokumentacji i ich rozwiązania
Dostęp do dokumentacji budowlanej może być często utrudniony z różnych przyczyn. Jednym z głównych problemów jest brak archiwizacji dokumentów przez lokalne urzędy, co może skutkować utratą ważnych planów budynków. W przypadku starszych obiektów, szczególnie tych, które zostały wybudowane przed 1939 rokiem, dokumentacja może być niekompletna lub zniszczona. Warto również pamiętać, że niektóre plany mogą być objęte ograniczeniami prawnymi, co może dodatkowo utrudnić ich pozyskanie.
Jednakże istnieją rozwiązania, które mogą pomóc w przezwyciężeniu tych problemów. Po pierwsze, warto skontaktować się bezpośrednio z archiwami państwowymi, które często posiadają kopie starych planów. Kolejną opcją jest zlecenie ekspertyzy technicznej, która może pomóc w odtworzeniu brakujących dokumentów. W przypadku budynków zabytkowych, współpraca z Powiatowym Konserwatorem Zabytków może okazać się nieoceniona, ponieważ organizacje te mają dostęp do informacji, które nie są publicznie dostępne. W ten sposób można zminimalizować problemy związane z dostępnością dokumentacji budowlanej.
Wyzwania związane z planami budynków zabytkowych
Plany budynków zabytkowych często wiążą się z licznymi wyzwaniami przy ich pozyskiwaniu. Po pierwsze, wiele z tych dokumentów może być objętych ograniczeniami prawnymi, które regulują dostęp do informacji o obiektach historycznych. Często wymagana jest zgoda konserwatora zabytków, co może wydłużyć proces uzyskania potrzebnych materiałów. Dodatkowo, dokumentacja może być w złym stanie technicznym, co utrudnia jej przeglądanie i interpretację. Warto również pamiętać, że niektóre plany mogą być przechowywane w archiwach zagranicznych, co dodatkowo komplikuje sytuację. Dlatego kluczowe jest podejście do tego tematu z odpowiednią starannością oraz współpraca z odpowiednimi instytucjami.
Jak poradzić sobie z brakiem dokumentacji budowlanej
Brak dokumentacji budowlanej może być dużym wyzwaniem, ale istnieją strategie, które mogą pomóc w tej sytuacji. Po pierwsze, warto skontaktować się z poprzednimi właścicielami lub zarządcami obiektu, którzy mogą mieć kopie planów lub przynajmniej informacje na ich temat. Jeśli to nie przyniesie rezultatów, można również rozważyć zlecenie ekspertyzy technicznej inżynierowi lub rzeczoznawcy budowlanemu, który oceni stan budynku i pomoże w odtworzeniu brakujących dokumentów. Kolejnym krokiem może być skontaktowanie się z lokalnym urzędem gminy, aby sprawdzić, czy są dostępne jakiekolwiek archiwalne dokumenty. W przypadku starszych budynków, warto również zbadać archiwa państwowe, które mogą przechowywać plany budynków z przeszłości.

Jak wykorzystać plany budynków w praktyce
Plany budynków mają wiele praktycznych zastosowań, które mogą znacznie ułatwić procesy budowlane i remontowe. Na przykład, podczas remontów, plany pozwalają na dokładne zrozumienie układu pomieszczeń oraz ich funkcji, co jest kluczowe dla efektywnego planowania. Dzięki nim można również uniknąć niepotrzebnych kosztów związanych z błędami konstrukcyjnymi. Współpraca z architektami i inżynierami na podstawie tych dokumentów pozwala na lepsze dostosowanie projektu do indywidualnych potrzeb inwestora.
Warto również zauważyć, że plany budynków są nieocenionym narzędziem w procesie uzyskiwania pozwoleń na budowę. Dzięki szczegółowym informacjom zawartym w dokumentach, można łatwiej przekonać lokalne władze do zatwierdzenia projektu. Co więcej, plany mogą być użyteczne w przypadku późniejszych zmian w budynku, ponieważ dostarczają niezbędnych danych do ich realizacji. Współpraca z profesjonalistami, którzy rozumieją te dokumenty, znacznie ułatwia cały proces.
Przykłady zastosowania planów w remontach i adaptacjach
Wiele projektów remontowych korzysta z planów budynków jako podstawy do wprowadzenia zmian. Na przykład, w przypadku adaptacji starego magazynu na mieszkania, plany architektoniczne pomagają w zrozumieniu, jakie zmiany są możliwe, aby dostosować przestrzeń do nowego przeznaczenia. Inny przykład to przebudowa biura, gdzie plany pozwalają na efektywne wykorzystanie przestrzeni, zapewniając jednocześnie zgodność z przepisami budowlanymi. W takich sytuacjach plany stają się kluczowym narzędziem w procesie projektowania i wykonawstwa.
Współpraca z architektami i inżynierami w zakresie projektów
Współpraca z architektami i inżynierami jest niezwykle ważna, gdy korzysta się z planów budynków. Specjaliści ci posiadają wiedzę i doświadczenie, które pozwala na lepsze wykorzystanie dokumentacji w praktyce. Dzięki ich wsparciu można uniknąć wielu błędów, które mogłyby prowadzić do opóźnień lub dodatkowych kosztów. Co więcej, architekci i inżynierowie mogą zaproponować innowacyjne rozwiązania, które poprawią funkcjonalność i estetykę projektu, co czyni ich współpracę nieocenioną w procesie budowlanym.
Jak wykorzystać nowoczesne technologie w analizie planów budynków
W dzisiejszych czasach, nowoczesne technologie znacząco zmieniają sposób, w jaki analizujemy i wykorzystujemy plany budynków. Dzięki oprogramowaniu do modelowania informacji o budynkach (BIM), architekci i inżynierowie mogą tworzyć wirtualne modele budynków, które pozwalają na lepszą wizualizację i planowanie przestrzeni. Używanie technologii BIM umożliwia także symulacje różnych scenariuszy, co może pomóc w identyfikacji potencjalnych problemów jeszcze przed rozpoczęciem fizycznej budowy.
Dodatkowo, systemy informacji geograficznej (GIS) mogą być wykorzystywane do analizy lokalizacji budynków w kontekście otoczenia. Dzięki GIS, inwestorzy mogą ocenić, jak różne czynniki, takie jak dostępność komunikacyjna czy bliskość do usług, wpływają na projekt. Integracja tych technologii z tradycyjnymi planami budynków otwiera nowe możliwości dla efektywności energetycznej oraz zrównoważonego rozwoju, co jest szczególnie istotne w kontekście rosnących wymagań dotyczących ochrony środowiska.
