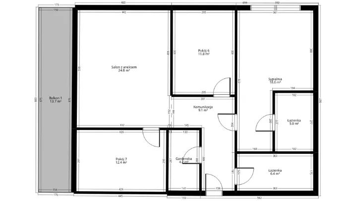
Rysowanie rzutu mieszkania to kluczowy krok w planowaniu przestrzeni, który pozwala na lepsze zrozumienie układu pomieszczeń i ich funkcji. Dzięki dostępnym online narzędziom, takim jak Archiplaner, Floorplanner czy Canva, proces ten stał się prostszy niż kiedykolwiek. Wystarczy kilka kliknięć, aby stworzyć dokładny plan, który pomoże w aranżacji wnętrza zgodnie z indywidualnymi potrzebami.
W artykule przedstawimy proste kroki, które ułatwią Ci narysowanie rzutu mieszkania. Dowiesz się, jak dokładnie zmierzyć przestrzeń, jakie narzędzia wybrać oraz jak wykorzystać dostępne programy do stworzenia profesjonalnego projektu. Zaczniemy od pomiarów, a następnie przejdziemy do tworzenia planu oraz zasad funkcjonalnego designu, które pomogą w maksymalnym wykorzystaniu dostępnej przestrzeni.
Najistotniejsze informacje:
- Wybór odpowiednich narzędzi do pomiaru, takich jak laserowy miernik czy taśma miernicza, jest kluczowy dla dokładności rysunku.
- Programy online umożliwiają łatwe dodawanie ścian, drzwi i okien oraz dostosowywanie elementów architektonicznych.
- Możliwość korzystania z gotowych szablonów znacznie przyspiesza proces tworzenia rzutu mieszkania.
- Ważne jest zachowanie proporcji i dokładnych wymiarów, co można osiągnąć poprzez importowanie ręcznie przygotowanego podkładu.
- Rzut można podglądać w wersji 2D i 3D, co ułatwia wizualizację projektu przed jego realizacją.
Jak dokładnie zmierzyć przestrzeń mieszkania dla rzutu
Aby dokładnie zmierzyć przestrzeń mieszkania, kluczowe jest posiadanie odpowiednich narzędzi oraz znajomość technik pomiarowych. Do najczęściej stosowanych narzędzi należą mierniki laserowe oraz taśmy miernicze, które pozwalają na precyzyjne określenie długości ścian i wymiarów pomieszczeń. Wybór odpowiedniego narzędzia zależy od preferencji użytkownika oraz specyfiki pomieszczenia. Dobrze wykonane pomiary są fundamentem dla dalszego etapu, jakim jest rysowanie rzutu mieszkania.
Ważne jest, aby podczas pomiarów zwracać uwagę na proporcje oraz dokładne wymiary, co pozwoli uniknąć błędów w późniejszym etapie projektowania. Używając mierników laserowych, można szybko i dokładnie zmierzyć odległości, co jest szczególnie przydatne w dużych pomieszczeniach. Taśmy miernicze sprawdzają się natomiast w mniejszych przestrzeniach, gdzie precyzja jest równie istotna. Zrozumienie technik pomiarowych to klucz do stworzenia funkcjonalnego i realistycznego rzutu mieszkania.
Wybór odpowiednich narzędzi do pomiaru przestrzeni
Wybór narzędzi do pomiaru przestrzeni jest kluczowy dla uzyskania dokładnych wyników. Istnieje wiele opcji, w tym mierniki laserowe, które oferują dużą precyzję i szybkość pomiarów. Na przykład, model Bosch GLM 50C pozwala na pomiar odległości do 50 metrów z dokładnością do ±1 mm. Inną popularną opcją jest Stanley FatMax, który łączy funkcjonalność taśmy mierniczej z dodatkowymi funkcjami elektronicznymi. Wybór odpowiedniego narzędzia może znacznie ułatwić proces pomiaru i przyspieszyć tworzenie rzutu mieszkania.
Techniki dokładnego pomiaru pomieszczeń i mebli
Dokładne pomiary pomieszczeń i mebli wymagają zastosowania odpowiednich technik. Najpierw warto zacząć od mierzenia od kątów, co pozwala na uzyskanie dokładnych wymiarów ścian. W przypadku nieregularnych kształtów pomieszczeń, należy zmierzyć każdy odcinek osobno, a następnie zsumować wyniki. Dobrą praktyką jest również mierzenie mebli, aby upewnić się, że będą pasować do zaplanowanej przestrzeni. Używanie narzędzi takich jak taśmy miernicze czy mierniki laserowe w połączeniu z technikami pomiarowymi zapewnia dokładność i ułatwia dalsze etapy projektowania.
- Mierniki laserowe, takie jak Bosch GLM 50C, oferują dużą precyzję pomiarów.
- Taśmy miernicze, jak Stanley FatMax, są idealne do pomiarów w mniejszych przestrzeniach.
- Technika mierzenia od kątów jest kluczowa dla uzyskania dokładnych wymiarów pomieszczeń.
Jak stworzyć prosty rysunek rzutu mieszkania krok po kroku
Tworzenie rysunku rzutu mieszkania to proces, który można zrealizować w kilku prostych krokach. Pierwszym etapem jest stworzenie szkicu, który można wykonać zarówno ręcznie, jak i w programie komputerowym. Rysowanie na papierze daje możliwość swobodnego kreślenia, jednak korzystanie z programów online, takich jak Archiplaner lub Floorplanner, umożliwia łatwe wprowadzanie zmian i korzystanie z gotowych szablonów. Dzięki temu można szybko i efektywnie stworzyć rysunek, który będzie odpowiadał rzeczywistości.
Po stworzeniu szkicu, następnym krokiem jest przeniesienie wymiarów na rysunek w skali. Ważne jest, aby zachować proporcje, co pozwoli na realistyczne odwzorowanie przestrzeni. Używając narzędzi dostępnych w programach, można łatwo dostosować wymiary do skali, co ułatwia dalsze etapy projektowania. W ten sposób uzyskujemy dokładny i funkcjonalny rysunek mieszkania, który będzie podstawą do dalszej aranżacji.
Tworzenie szkicu na papierze lub w programie komputerowym
Wybór metody tworzenia szkicu rzutu mieszkania ma znaczenie dla końcowego efektu. Rysowanie na papierze pozwala na pełną swobodę twórczą, a także jest idealne dla osób, które preferują tradycyjne podejście. Z drugiej strony, korzystanie z programów komputerowych, takich jak RoomSketcher, oferuje szereg korzyści, w tym możliwość łatwego wprowadzania poprawek i korzystania z bibliotek elementów architektonicznych. Oba podejścia mają swoje zalety, a wybór zależy od indywidualnych preferencji użytkownika.
Jak przenieść wymiary na rysunek w skali
Przenoszenie wymiarów na rysunek w skali to kluczowy krok w procesie tworzenia rzutu mieszkania. Aby to zrobić, należy najpierw ustalić, jaką skalę chcemy zastosować, na przykład 1:50, co oznacza, że 1 cm na papierze odpowiada 50 cm w rzeczywistości. Następnie, korzystając z wcześniej wykonanych pomiarów, można przeliczyć wymiary, aby odzwierciedlić je w odpowiedniej skali. Taki sposób pracy pozwala na uzyskanie dokładnego rysunku, który będzie pomocny podczas dalszego projektowania i aranżacji przestrzeni.
| Oprogramowanie | Cechy | Cena |
|---|---|---|
| SketchUp | 3D modeling, łatwe w użyciu | Bez opłat podstawowych, płatne funkcje |
| RoomSketcher | Tworzenie rysunków 2D i 3D, szablony | Darmowy z opcjami płatnymi |
| Archiplaner | Intuicyjny interfejs, możliwość współpracy online | Darmowy, z opcjami premium |
Czytaj więcej: Jak kupić mieszkanie za gotówkę – uniknij kosztów i pułapek
Zasady projektowania funkcjonalnego układu mieszkania
Projektowanie funkcjonalnego układu mieszkania wymaga uwzględnienia kilku kluczowych zasad. Przede wszystkim, optymalizacja przestrzeni jest niezwykle istotna, szczególnie w mniejszych mieszkaniach. Należy dążyć do maksymalnego wykorzystania dostępnej powierzchni, aby stworzyć komfortowe i praktyczne środowisko. Warto także pomyśleć o strefowaniu, czyli wydzielaniu różnych obszarów w mieszkaniu, które pełnią różne funkcje, takie jak strefa wypoczynkowa, jadalniana czy robocza.
Ważnym elementem jest również przepływ przestrzeni, który powinien być płynny i naturalny. Umożliwia to swobodne poruszanie się po mieszkaniu oraz zapewnia wygodę użytkowania. Dobrze zaplanowane strefy funkcjonalne pozwalają na lepsze zorganizowanie przestrzeni, co przekłada się na jej efektywność. Pamiętaj, że każdy detal ma znaczenie, a przemyślane podejście do projektowania układu mieszkania może znacząco poprawić jakość życia jego mieszkańców.
Jak zoptymalizować przestrzeń w małych mieszkaniach
Aby maksymalnie wykorzystać przestrzeń w małych mieszkaniach, warto zastosować kilka sprytnych strategii. Po pierwsze, używaj mebli wielofunkcyjnych, które mogą pełnić różne role, na przykład rozkładane sofy czy stoły z możliwością regulacji wysokości. Po drugie, stosuj jasne kolory na ścianach i podłogach, co optycznie powiększa przestrzeń. Dodatkowo, warto zainwestować w rozwiązania do przechowywania, takie jak szafki pod łóżkiem czy półki na wysokości, które wykorzystują niewykorzystaną przestrzeń. Dzięki tym prostym krokom, nawet najmniejsze mieszkanie może stać się funkcjonalne i komfortowe.
Wybór odpowiednich stref funkcjonalnych w planie
Wybór odpowiednich stref funkcjonalnych w planie mieszkania jest kluczowy dla jego efektywności. Każda strefa powinna być dostosowana do potrzeb mieszkańców, co pozwoli na lepsze wykorzystanie przestrzeni. Na przykład, strefa wypoczynkowa powinna być zlokalizowana w miejscu, które zapewnia komfort i spokój, podczas gdy strefa robocza powinna być dobrze oświetlona i zorganizowana. Dobrze przemyślane strefowanie wpływa na komfort życia oraz pozwala na efektywne zarządzanie przestrzenią w mieszkaniu.
Inspiracje i przykłady różnych układów mieszkań
Wybór odpowiedniego układu mieszkania ma kluczowe znaczenie dla komfortu i funkcjonalności przestrzeni. Istnieje wiele popularnych układów, które odpowiadają różnym potrzebom mieszkańców. Na przykład, układ otwarty łączy kuchnię z salonem, co sprzyja integracji i sprawia, że przestrzeń wydaje się większa. Z kolei układ tradycyjny dzieli pomieszczenia na wyraźne strefy, co może być korzystne dla rodzin, które preferują oddzielne przestrzenie do pracy i wypoczynku. Każdy z tych układów ma swoje zalety, które warto rozważyć przed podjęciem decyzji.
Warto również zwrócić uwagę na układy modułowe, które pozwalają na elastyczne dostosowanie przestrzeni do zmieniających się potrzeb mieszkańców. Dzięki zastosowaniu ruchomych ścianek czy mebli wielofunkcyjnych, można łatwo przekształcać przestrzeń w zależności od sytuacji. Dobrze zaplanowany układ mieszkania nie tylko zwiększa komfort, ale także wpływa na organizację codziennego życia. Poniżej przedstawiamy tabelę różnych układów mieszkań, ich opisy oraz zalety i wady.
Analiza popularnych układów mieszkań i ich zalety
Wśród popularnych układów mieszkań wyróżnia się kilka, które zyskały uznanie wśród mieszkańców. Układ otwarty jest idealny dla osób ceniących sobie przestronność i swobodę, ponieważ łączy różne strefy w jedną, co sprzyja interakcji. Układ zamknięty natomiast, z wyraźnie oddzielonymi pokojami, jest bardziej tradycyjny i zapewnia prywatność. Układ studio to doskonałe rozwiązanie dla singli lub par, którzy potrzebują funkcjonalnej przestrzeni w niewielkim metrażu. Każdy z tych układów ma swoje unikalne cechy, które mogą odpowiadać różnym stylom życia.
Jak dostosować układ do indywidualnych potrzeb mieszkańców
Dostosowanie układu mieszkania do indywidualnych potrzeb mieszkańców jest kluczowe dla jego funkcjonalności. Warto zastanowić się, jakie strefy są dla nas najważniejsze, na przykład strefa pracy czy relaksu. Można również zastosować meble wielofunkcyjne, które pozwolą na elastyczne zarządzanie przestrzenią. Dodatkowo, warto pomyśleć o odpowiednim oświetleniu i kolorach, które wpływają na atmosferę w mieszkaniu. Personalizacja układu sprawi, że przestrzeń będzie bardziej komfortowa i dostosowana do codziennych potrzeb mieszkańców.
| Układ mieszkania | Opis | Zalety | Wady |
|---|---|---|---|
| Układ otwarty | Kuchnia połączona z salonem | Przestronność, integracja | Brak prywatności |
| Układ zamknięty | Oddzielne pokoje | Prywatność, wygoda | Mniejsza przestronność |
| Układ studio | Jedno pomieszczenie z aneksem kuchennym | Funkcjonalność, oszczędność miejsca | Ograniczona przestrzeń |

Jak radzić sobie z najczęstszymi wyzwaniami podczas planowania
Planowanie rzutu mieszkania może wiązać się z wieloma wyzwaniami, które warto znać i umieć rozwiązać. Jednym z najczęstszych problemów jest nieregularny kształt pomieszczeń, co może utrudniać efektywne zagospodarowanie przestrzeni. W takich przypadkach warto wykorzystać meble o nietypowych kształtach lub zastosować rozwiązania, które pozwolą na maksymalne wykorzystanie dostępnej powierzchni. Innym problemem, z którym można się spotkać, jest niedobór przestrzeni, co może prowadzić do uczucia przytłoczenia. W takich sytuacjach kluczowe jest optymalne rozmieszczenie mebli oraz zastosowanie trików optycznych, które sprawią, że wnętrze będzie wydawać się większe.Planowanie rzutu mieszkania może wiązać się z wieloma wyzwaniami, które warto znać i umieć rozwiązać. Jednym z najczęstszych problemów jest nieregularny kształt pomieszczeń, co może utrudniać efektywne zagospodarowanie przestrzeni. W takich przypadkach warto wykorzystać meble o nietypowych kształtach lub zastosować rozwiązania, które pozwolą na maksymalne wykorzystanie dostępnej powierzchni. Innym problemem, z którym można się spotkać, jest niedobór przestrzeni, co może prowadzić do uczucia przytłoczenia. W takich sytuacjach kluczowe jest optymalne rozmieszczenie mebli oraz zastosowanie trików optycznych, które sprawią, że wnętrze będzie wydawać się większe.
Warto również pamiętać o przepływie przestrzeni, który powinien być płynny, aby ułatwić poruszanie się po mieszkaniu. Zbyt wiele przeszkód może sprawić, że przestrzeń stanie się nieprzyjemna w użytkowaniu. W przypadku wystąpienia problemów z planowaniem, warto skonsultować się z ekspertem lub skorzystać z dostępnych narzędzi online, które mogą pomóc w wizualizacji i dostosowaniu rzutu mieszkania do indywidualnych potrzeb. Poniżej znajdują się porady, które pomogą w radzeniu sobie z najczęstszymi wyzwaniami podczas planowania.
Rozwiązywanie problemów z nietypowymi kształtami pomieszczeń
Radzenie sobie z nietypowymi kształtami pomieszczeń wymaga kreatywności i elastyczności w podejściu do aranżacji. Warto zacząć od dokładnego pomiaru każdego kąta i odcinka, aby lepiej zrozumieć, jak wykorzystać przestrzeń. Można zastosować meble modułowe, które można dostosować do różnych układów. Dobrze sprawdzają się również przesuwne drzwi lub ścianki działowe, które pozwalają na elastyczne zarządzanie przestrzenią. W przypadku skomplikowanych kształtów warto rozważyć konsultację z architektem, który pomoże znaleźć najlepsze rozwiązanie.
Jak unikać błędów w planowaniu przestrzeni mieszkalnej
Aby unikać błędów w planowaniu przestrzeni mieszkalnej, warto zwrócić uwagę na kilka kluczowych aspektów. Przede wszystkim, należy dokładnie przemyśleć funkcje poszczególnych pomieszczeń i ich wzajemne powiązania. Ważne jest, aby nie zatykać przejść i zapewnić odpowiednią przestrzeń do poruszania się. Kolejną istotną kwestią jest unikanie nadmiernego zagracenia wnętrza, co można osiągnąć poprzez wybór mebli o odpowiednich rozmiarach. Na koniec, warto regularnie przeglądać i aktualizować swoje plany, aby dostosować je do zmieniających się potrzeb mieszkańców.
Jak wykorzystać technologię do optymalizacji układu mieszkania
W dzisiejszych czasach technologia odgrywa kluczową rolę w projektowaniu i planowaniu przestrzeni mieszkalnej. Dzięki nowoczesnym aplikacjom i narzędziom online, można nie tylko stworzyć rzut mieszkania, ale także wykorzystać symulacje 3D, które pozwalają na wizualizację różnych układów w czasie rzeczywistym. Narzędzia te umożliwiają eksperymentowanie z różnymi aranżacjami, kolorami i meblami, co pozwala na lepsze dostosowanie przestrzeni do indywidualnych potrzeb mieszkańców. Co więcej, wiele z tych aplikacji oferuje analizę przestrzenną, która może pomóc w identyfikacji obszarów do optymalizacji, wskazując, które elementy mogą być ulepszone lub zmienione.
Warto również zwrócić uwagę na inteligentne rozwiązania, takie jak systemy zarządzania domem, które mogą automatycznie dostosowywać oświetlenie, temperaturę i inne aspekty, aby stworzyć komfortową przestrzeń. Integracja tych technologii z planowaniem układu mieszkania nie tylko zwiększa komfort, ale także wpływa na efektywność energetyczną. W przyszłości, zastosowanie rozwiązań opartych na sztucznej inteligencji w projektowaniu mieszkań może jeszcze bardziej zrewolucjonizować sposób, w jaki myślimy o przestrzeni życiowej, umożliwiając bardziej spersonalizowane i funkcjonalne układy, które odpowiadają na zmieniające się potrzeby użytkowników.
