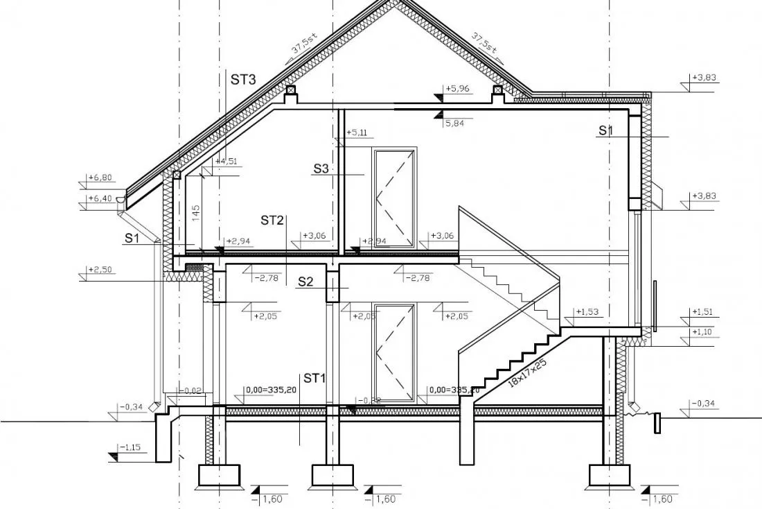
Punkt zero budynku to kluczowy element w procesie budowlanym, od którego rozpoczynają się wszystkie pomiary wysokości. Oznaczany jako ±0,00 m, stanowi on poziom gotowej podłogi na parterze, który wyznacza miejsce posadowienia posadzki w nowo wybudowanym domu. Dokładne wyznaczenie punktu zero ma ogromne znaczenie dla stabilności i bezpieczeństwa całej konstrukcji, ponieważ wpływa na dalsze pomiary wysokościowe, eliminując ryzyko błędów w kolejnych etapach budowy.
W artykule przyjrzymy się nie tylko definicji punktu zero, ale także jego roli w procesie budowlanym oraz konsekwencjom, jakie mogą wyniknąć z jego niewłaściwego wyznaczenia. Zrozumienie tego zagadnienia jest kluczowe dla każdego, kto pracuje w branży budowlanej lub planuje budowę własnego domu.
Kluczowe informacje:
- Punkt zero budynku to punkt odniesienia dla pomiarów wysokości w budownictwie.
- Oznaczany jest jako ±0,00 m, co stanowi poziom gotowej podłogi na parterze.
- Dokładne wyznaczenie punktu zero wpływa na stabilność i bezpieczeństwo budowli.
- Punkt zero eliminuje ryzyko błędów w kolejnych pomiarach wysokościowych.
- Nieprawidłowe wyznaczenie punktu zero może prowadzić do poważnych konsekwencji konstrukcyjnych.
Co to jest punkt zero budynku i jego definicja w budownictwie
Punkt zero budynku to kluczowy element w budownictwie, od którego rozpoczynają się wszystkie pomiary wysokości. Jest to punkt odniesienia, który wyznacza wysokość gotowej podłogi na parterze, co ma fundamentalne znaczenie dla dalszych etapów budowy. Oznaczany w projektach jako ±0,00 m, punkt zero stanowi podstawę dla wszystkich kolejnych pomiarów, co eliminuje ryzyko błędów w późniejszych fazach budowy. Jego precyzyjne wyznaczenie jest niezbędne dla stabilności i bezpieczeństwa całej konstrukcji.
W praktyce, punkt zero budynku wpływa na wiele aspektów budowy, w tym na poziom posadowienia posadzki oraz na ogólną estetykę i funkcjonalność przestrzeni. Bez dokładnego oznaczenia tego punktu, cały proces budowlany może napotkać poważne problemy, które mogą prowadzić do kosztownych poprawek. Zrozumienie, czym jest punkt zero, jest kluczowe dla każdego, kto planuje budowę lub pracuje w branży budowlanej.
Kluczowe znaczenie punktu zero dla pomiarów wysokości
Punkt zero odgrywa fundamentalną rolę w pomiarach wysokości na placu budowy. To właśnie od niego zaczynają się wszelkie obliczenia związane z wysokością różnych elementów budynku, takich jak ściany, sufity czy podłogi. Dokładność tych pomiarów jest kluczowa, ponieważ wszelkie błędy mogą prowadzić do niezgodności w projekcie oraz problemów z późniejszymi etapami budowy. Dzięki punktowi zero, inżynierowie i architekci mogą precyzyjnie określić, na jakiej wysokości powinny znajdować się poszczególne elementy, co zapewnia ich prawidłowe funkcjonowanie i bezpieczeństwo.
Jak punkt zero wpływa na stabilność budynku
Punkt zero budynku ma kluczowe znaczenie dla stabilności całej konstrukcji. Jako punkt odniesienia, od którego zaczynają się wszystkie pomiary wysokości, jego dokładność wpływa na to, jak poszczególne elementy budynku są ze sobą zintegrowane. W przypadku błędnego wyznaczenia punktu zero, mogą wystąpić poważne problemy strukturalne, takie jak nierówności w poziomie podłóg czy problemy z nośnością ścian. To z kolei może prowadzić do zagrożenia bezpieczeństwa mieszkańców oraz do kosztownych napraw, które mogą przekroczyć pierwotny budżet projektu.
Rola punktu zero w procesie budowlanym i jego zastosowanie
W procesie budowlanym, punkt zero odgrywa niezwykle istotną rolę na etapie planowania i wykonania. Ustalając ten punkt, inżynierowie mogą precyzyjnie wyznaczyć poziom, na którym będą umieszczane fundamenty oraz inne kluczowe elementy budynku. Dzięki temu, wszystkie dalsze pomiary są oparte na solidnej podstawie, co zapewnia, że budowa przebiega zgodnie z planem. Bez odpowiedniego wyznaczenia punktu zero, ryzyko błędów w kolejnych etapach budowy znacznie wzrasta.
W praktyce, punkt zero jest wykorzystywany na różnych etapach budowy, od przygotowania terenu po finalne pomiary. W każdym przypadku, jego precyzyjne ustalenie jest kluczowe dla sukcesu całego projektu. Właściwe zastosowanie punktu zero pozwala na eliminację ewentualnych niezgodności i problemów, które mogą wpłynąć na jakość budynku. Dlatego jego znaczenie w procesie budowlanym nie może być niedoceniane.
Praktyczne przykłady użycia punktu zero w projektach
Punkt zero odgrywa kluczową rolę w wielu projektach budowlanych, gdzie jego precyzyjne wyznaczenie wpływa na sukces całej inwestycji. Na przykład, w projekcie budowy Centrum Handlowego Wroclavia we Wrocławiu, punkt zero został dokładnie ustalony, co pozwoliło na bezproblemowe wzniesienie konstrukcji w trudnych warunkach gruntowych. Dzięki temu, budynek charakteryzuje się nie tylko estetyką, ale także stabilnością, co przyciąga wielu klientów. Innym przykładem jest budowa biurowca Sky Tower w Wrocławiu, gdzie również kluczowe znaczenie miało precyzyjne ustalenie punktu zero. W tym przypadku, jego właściwe wyznaczenie pozwoliło na zrealizowanie nowoczesnych rozwiązań architektonicznych i zapewnienie bezpieczeństwa użytkowników budynku.
| Nazwa projektu | Lokalizacja | Wynik |
|---|---|---|
| Centrum Handlowe Wroclavia | Wrocław | Stabilna konstrukcja, atrakcyjny dla klientów |
| Sky Tower | Wrocław | Nowoczesne rozwiązania architektoniczne, bezpieczeństwo |
Potencjalne konsekwencje błędnego wyznaczenia punktu zero
Błędne wyznaczenie punktu zero budynku może prowadzić do poważnych konsekwencji, zarówno strukturalnych, jak i finansowych. Przede wszystkim, niewłaściwe pomiary mogą skutkować nierównościami w poziomie podłóg oraz problemami z nośnością ścian, co zagraża stabilności całej konstrukcji. W efekcie, mogą wystąpić dodatkowe koszty związane z naprawą błędów, które mogą przekroczyć pierwotny budżet projektu. Ponadto, takie problemy mogą wpłynąć na czas realizacji budowy, co z kolei może prowadzić do kar umownych. Dlatego tak ważne jest, aby punkt zero był wyznaczony z najwyższą precyzją i starannością.

Powiązane pojęcia w budownictwie, które warto znać
W budownictwie istnieje wiele pojęć, które są ściśle związane z punktem zero budynku i jego znaczeniem w procesie budowlanym. Do najważniejszych z nich należą inne punkty odniesienia, takie jak punkt odniesienia, który służy do ustalania poziomu posadowienia budynku, oraz punkt wysokościowy, który określa wysokość poszczególnych elementów konstrukcyjnych. Zrozumienie tych terminów jest kluczowe dla prawidłowego planowania i realizacji projektów budowlanych, ponieważ każdy z tych punktów ma swoje specyficzne zastosowanie i wpływa na ogólną jakość i bezpieczeństwo budowy. Dodatkowo, znajomość różnic między tymi pojęciami pozwala na lepsze zrozumienie, jak współdziałają one w kontekście całego procesu budowlanego.
Różnice między punktem zero a innymi punktami odniesienia
Punkt zero budynku różni się od innych punktów odniesienia, które są używane w budownictwie. Na przykład, punkt odniesienia jest zazwyczaj ustalany na podstawie naturalnych cech terenu, takich jak poziom gruntu, podczas gdy punkt zero jest wyznaczany na podstawie gotowej podłogi na parterze. Punkty wysokościowe natomiast definiują konkretne wysokości różnych elementów konstrukcyjnych, takich jak sufity czy okna, i są powiązane z punktem zero. Zrozumienie tych różnic jest istotne, ponieważ pozwala na precyzyjne planowanie konstrukcji oraz unikanie potencjalnych błędów, które mogą wpłynąć na stabilność budynku. Każdy z tych punktów odniesienia ma swoje unikalne zastosowanie i znaczenie w kontekście budowy.
Jak technologia wpływa na precyzyjne wyznaczanie punktu zero
W dobie nowoczesnych technologii, wyznaczanie punktu zero budynku staje się coraz bardziej precyzyjne dzięki zastosowaniu zaawansowanych narzędzi pomiarowych, takich jak skanery laserowe i systemy GPS. Te innowacje pozwalają na dokładne ustalenie poziomu budowy, eliminując błędy, które mogą prowadzić do poważnych konsekwencji strukturalnych. Skanery laserowe umożliwiają szybkie i dokładne pomiary, które są szczególnie przydatne w trudnych warunkach terenowych, gdzie tradycyjne metody mogą zawieść.
Dodatkowo, integracja technologii BIM (Modelowanie Informacji o Budynku) z procesem budowlanym pozwala na lepsze zarządzanie danymi związanymi z punktem zero. Dzięki BIM, wszystkie informacje dotyczące wysokości, posadowienia i innych punktów odniesienia są zintegrowane w jednym modelu, co ułatwia współpracę między zespołami projektowymi a wykonawczymi. W przyszłości, rozwój technologii dronów do pomiarów terenowych może jeszcze bardziej zrewolucjonizować sposób, w jaki ustalamy punkty odniesienia, zwiększając efektywność i dokładność całego procesu budowlanego.
